View of Visitor’s Center entrance

Visitor’s Center and Bottle Shop

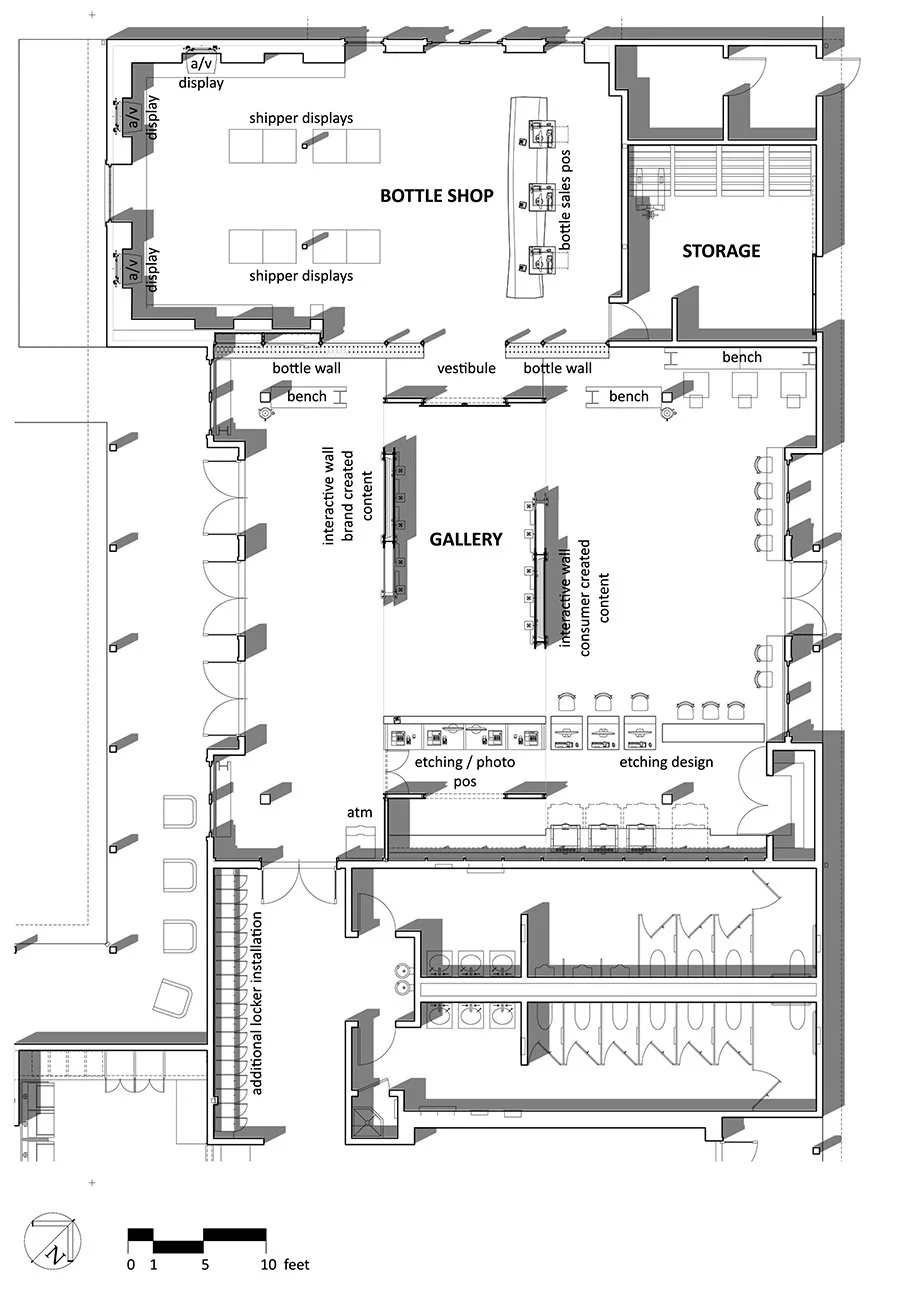
Jack Daniel’s Distillery, Lynchburg, Tennessee - 2015

At the heart of the Jack Daniel’s Distillery, the Visitor’s Center Bottle Shop reconnects visitors with the brand’s rich heritage and warm spirit of community, craftsmanship, and tradition.

The renovated interior blends charred wood accent walls, oak ricking details, and a planked oak log cash wrap, creating a tactile, authentic atmosphere inspired by the materials used in the process of whiskey production. A striking glazed “bottle wall” forms a pixelated portrait of Jack Daniel himself, while historic bottle displays and large-format interactive monitors narrate the brand’s evolution and global reach.

More than a retail space, the bottle shop fosters connection - inviting visitors to explore whiskey-making history, customize their bottles, and immerse themselves in stories that span generations. This thoughtful blend of heritage and innovation ensures every guest leaves with a deeper appreciation for America’s most popular whiskey.

At approximately 6000 square feet (557 square meters), the bottle shop stands as a vibrant new chapter in Jack Daniel’s legacy.

Client: Brown - Forman

Design Lead: Clickspring Design

Architect of Record: Tuck - Hinton Architects

Photography: Andrew Pogue

BACK TO GALLERY
ON TO NEXT PROJECT