View of mock up bar

Brown - Forman Brand Lab

Louisville, Kentucky - (unrealized)

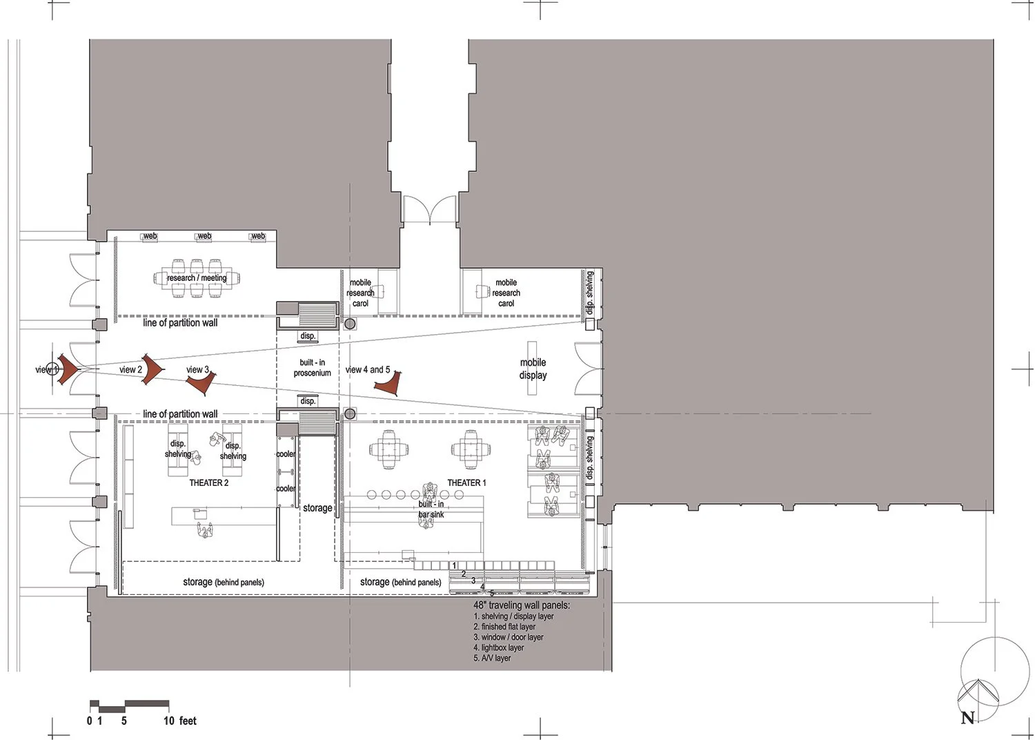
Inside their Louisville Headquarters, Brown-Forman crafts an innovative playground for creativity and experimentation. This brand lab is a flexible environment designed to prototype, test, and market over 34 diverse wine and spirits brands under one roof.

The space supports mock ups that reflect real-world settings that challenge creative teams’ perspectives and deepen their understanding of each product’s identity. Here, design meets consumer insight through mutable theaters that represent retail, hospitality, and social environments, enabling comprehensive brand experiences.

The layout emphasize versatility, encouraging fresh ideas while maintaining a clear connection to the heritage and quality behind Brown-Forman’s portfolio. This dynamic lab nurtures innovation while honoring tradition, supporting the company’s ongoing leadership in a competitive global market.

Client: Brown - Forman

Design Lead: Clickspring Design

ON TO NEXT PROJECT
BACK TO GALLERY