View of distillery masterplan and tour path

Distillery Masterplan + Projects

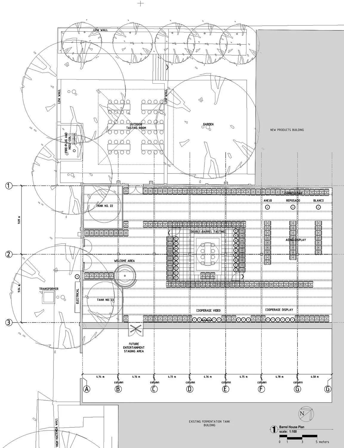
Tequila Herradura Distillery, Amatitán, Jalisco, México - 2011 to 2012

Casa Herradura welcomes over 45,000 visitors annually, many arriving aboard the historic Tequila Express train from Guadalajara. To enhance this festive arrival, Brown-Forman commissioned a new rail station in Amatitán - a gateway designed to honor the region’s architectural heritage and agave farming traditions.

The design for the station platform incorporates local materials and neoclassical forms, and details inspired by the coa de jima, the specialized tool jimadores use to harvest agave. This thoughtful nod connects guests directly to the roots of tequila production.

The event pavilion offers a space at the hacienda for visitors to meet, enjoy local cuisine, and participate in events that celebrate the rich traditions of the region.

While the town of Tequila may get the spotlight, Casa Herradura’s bottle shop in Amatitán tells the authentic story - highlighting the history of tequila at the Herradura Hacienda.

VIP visitors are treated to an intimate tasting experience in the Double Barrel Warehouse, a room encircled by barrels where guests explore the aging journey from silver to reposado to añejo. The unique program allows visitors to purchase and name their own barrel, monitoring its maturation until it is bottled and shipped to their specifications.

Combined, the projects allow guests savor the brand’s rich history and diverse portfolio, receiving an open invitation to explore the heart of tequila’s heritage.

Client: Brown - Forman

Design Lead: Clickspring Design

ON TO NEXT PROJECT
BACK TO GALLERY